THE SIXTY TWO™ Society Gallery
Design you can feel. Browse highlights from the conceptual designs, the buildout, and THE SIXTY TWO™ photos.
Explore the Space
A guided tour of the experience from entry to exit.
Press play and take a tour through key rooms and transitions. You will see how the design choices work together to create a calm, elevated atmosphere.
Inside The Experience of THE SIXTY TWO™ Society
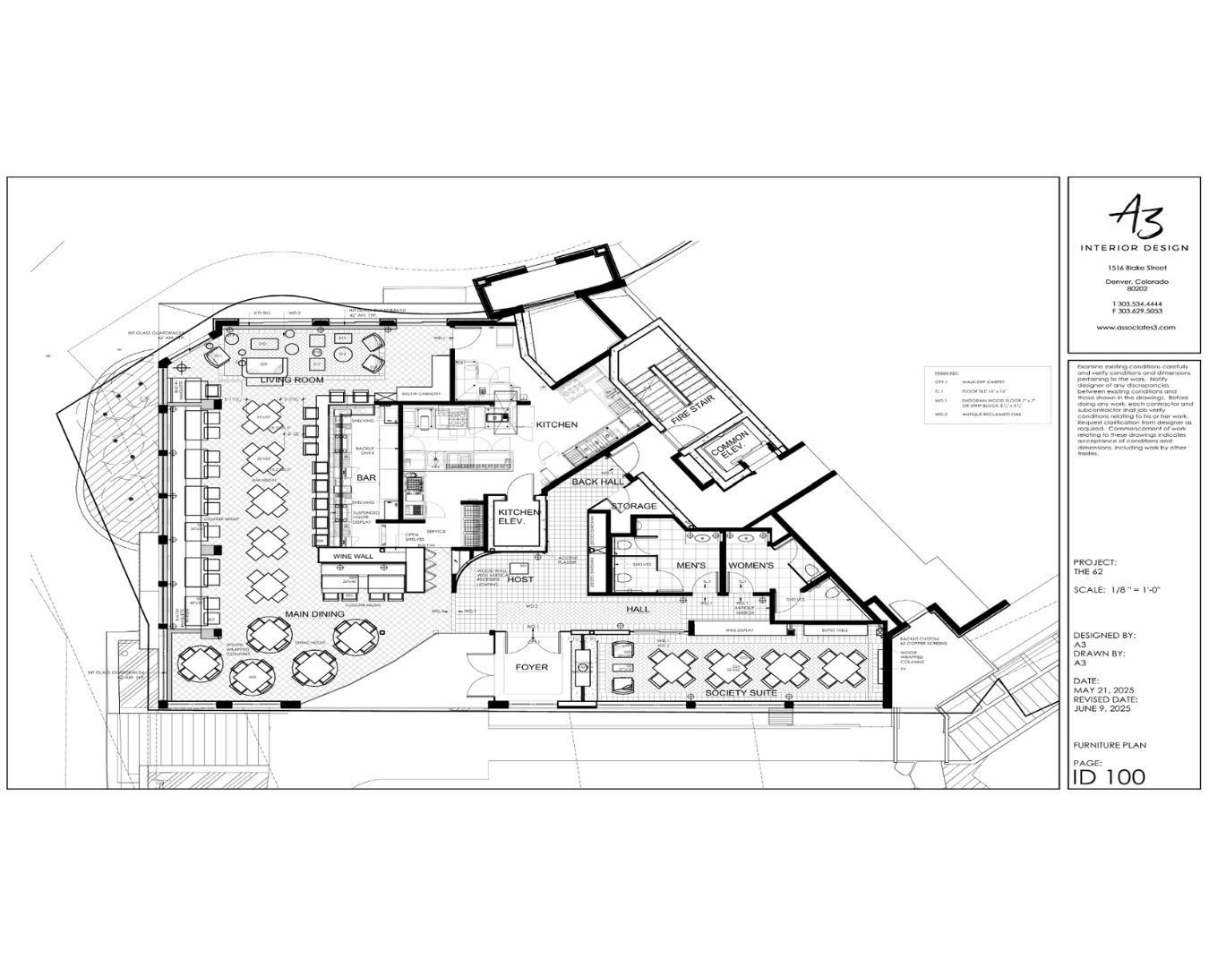
These concept drawings reveal the expression of our vision. See how design, creativity, and our stories come together. Each sketch maps the experience members will feel in the finished space.
Behind the Build of THE SIXTY TWO™ Society
Unedited construction photos from the field, uploaded as work happened so you can see real progress without staging or polish.
Through the Years | THE SIXTY TWO™ Society
These images capture traditions, places, and faces we love. Enjoy restored scans from the past, then scroll into the present.
Join THE SIXTY TWO™ Society
Along with unparalleled ski-in/ski-out access and ski valet services comes breathtaking views and an easy walk to village shops.











































